Slideshow: 10 Keyboard Shortcuts Every Scan2CAD User Should Know

Updated Apr 4, 2019
Scan2CAD Keyboard Shortcuts
Please note: This post is for Scan2CAD v8 and v9. For an updated list of keyboard shortcuts for the current release please see the Scan2CAD keyboard shortcuts help article.

Creating a CAD drawing can be time-consuming. It can take an age to master each different piece of CAD software; even simple CAD projects require experience with lots of different tools. Choosing Scan2CAD is just one way to help speed up the design process. If you want to really turbo-charge your CAD work, though, you’ll need to get to grips with some hand keyboard shortcuts. Check out our useful slideshow, and we’ll teach you how to navigate Scan2CAD like a keyboard ninja!


Transcript:

Scan2CAD already helps CAD users around the world save hours of time every working day by automating the raster-to-vector conversion process. But what if I told you that you could save even more time? Scan2CAD has a number of great keyboard shortcuts that can help to speed up your workflow and boost your productivity. Want to learn how to use them? Here’s a guide to our top 10 shortcuts. You’ll learn how to…

  • Move around the screen
  • Zoom in and out
  • Get set up
  • View vectors
  • View vector grab points
  • View vectors by color or type
  • Vectorize
  • Undo
  • Rotate raster image
  • Tidy up vectors

1. Moving around the screen

Thoroughly checking your image before and after conversion is the best way to avoid errors and ensure best results. Using the keyboard shortcuts in the list on the right means that you can view your image in great detail whilst still ensuring no part of the image is left unchecked. This means you can take a systematic approach to checking your image.

Up Pan up incrementally
Down Pan down incrementally
Left Pan left incrementally
Right Pan right incrementally
Ctrl + Up Pan up by a page
Ctrl + Down Pan down by a page
Ctrl + Left Pan left by a page
Ctrl + Right Pan right by a page
Tip: When should you use shortcuts to move around the screen?
These shortcuts are especially helpful when cleaning up a raster image, tidying up a vector image or just checking vectorization results.

  1. Zoom in until you can see all the detail.
  2. Press Ctrl + Right to move one screen to the right.
  3. Repeat screen by screen until you’ve moved across the image.
  4. Press Ctrl + Down to move down. Press Ctrl + Left to move left, and go across.
  5. Keep going until you have moved through the entire drawing

2. Zooming in and out

Zooming is an intuitive and simple process—just click on the magnifying glass, or use a keyboard shortcut! Please note, though, that these shortcuts are different to those you may be familiar with from programs such as Google Chrome or Microsoft Office. When you select an area of your image, you can also use the F key to enlarge it to fill the screen.

M Magnify
D De-magnify
F Fill screen with the selected area
Scroll wheel on your mouse Zoom in around your cursor position

Zooming into Image - Scan2CAD Keyboard Shortcut

3. Getting set up

Every designer will have different preferences as to how their workspace is set up. Scan2CAD is no different—that’s why you can select from a number of different viewing settings. In the next few slides, we’ll also be going into detail on how some of these settings can be used.

  Toggle these on and off
Shift + I Grid display
Shift + P Palette display
Shift + F Raster display
Shift + G Vector ghost display
G Grab point display
P Polygon and polyline endpoint display
E Bezier control point display
C Viewing vectors by color/type
T Text extents display
Shift + L Vector line width display
Shift + H Polygon outline display

4. Viewing vectors

You can choose whether to display your vector image only, raster image only, or both. This is a useful tool for comparing your original raster image with the vector image created by the conversion process. These keyboard shortcuts are a quick and easy way to toggle between the different views and compare and contrast between the images.

V View Vectors only
R View Raster only
B View Both vector and raster

5. View vector grab points

It’s easy to see where your vectors start and end by viewing grab points. Grab points are placed:

  • at the ends of a vector line
  • at the centre and 12 o’clock points of a vector circle
  • at the mid points of an arc
  • at text origin points

You also use Grab Points to move vectors around the screen – just position your cursor over the grab point and drag the vector to its new position.

G Toggle between Grab Points On/Off
P Toggle between Grab Points On/Off (applicable for polyline and polygon end points)

6. View vector elements by type

Choosing to view vectors by type means that different types of vectors will be differentiated from one another on screen by being displayed in different colors. The full list of colors for each line type is:

  • Continuous lines: Red
  • Dash lines: Black
  • Arrow lines: Gray
  • Hatch lines: Brown
  • Polylines: Green
  • Circles: Dark blue
  • Arcs: Magenta
  • Bezier curve: Pale blue
  • Text: Magenta
C Toggle between viewing vectors by Color or by Type

7. Vectorize

Scan2CAD makes vectorization a one-click process — but if you’d rather use your keyboard, it can just as easily be a one-stroke process using the commands on the right. You can choose whether to vectorize text, lines, or both — and if things don’t go to plan, it’s just as easy to undo them by hitting the same key again + Ctrl.

F5 Vectorize raster text only (OCR)
F6 Vectorize raster image without text
F7 Vectorize raster image with text
Ctrl + F5 Undo raster text recognition
Ctrl + F6 Undo vectorization
Ctrl + F7 Undo vectorization and raster text recognition

8. Undo

Everyone makes mistakes from time to time, so you’re almost definitely familiar with this one. If not, then say hello to the most useful keyboard shortcut on your computer. Using Ctrl + Z gives you the freedom to take a trial-and-error approach whilst perfecting your vector image. With Scan2CAD, you can undo up to 256 actions!

Ctrl + Z Undo Edits

9. Rotate raster image

Skewed image

Using the Deskewing tool on very skewed images usually results in a significant loss of quality, so best to avoid that!

Need to deskew a raster image before you vectorize it? This is one of our favourite tips to do just that! When you select the Rotate by Line tool, Scan2CAD will prompt you to draw a reference line. Draw this line on top of a skewed line which should be exactly horizontal or vertical. Scan2CAD will use this line as a reference to detect the angle by which the image is skewed. The tool will then automatically rotate the image, giving you perfect alignment!

Ctrl + L Rotate by Line

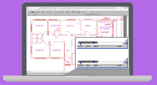
10. Tidy up vectors

Attach End Point determines which grab points are moved together. Extend Grab Point ‘stretches’ one vector to meet another vector. Grab Snap Distance defines how close two vector end points must be for them to snap together.

A Attach End Points On/Off
E End Point Snap On/Off
\ Extend a vector
. (period) Increase Grab Snap Distance (by one value up)
, (comma) Decrease Grab Snap Distance (by one value down)
Check end points - Scan2CAD

Can’t tell whether Attach End Points is switched on or off?
Just check at the bottom of your screen!


For more tips and tricks, be sure to check out our blog! Each week, our team explores a different topic from the world of CAD and its related fields. We’ve got guides to file conversion, introduction to the different CAD file types, as well as DIY tutorials to get you started with Scan2CAD!

scan2cad advert for free trial

Scan2CAD

  1. Professional-grade conversion software for Windows & MacOS

Account

  1. Account Login

From the blog

    Scan2CAD is copyright and a registered trademark of Avia Systems.

    Head quartered in Worcester, United Kingdom. Registered in England & Wales, company no. 7557200.

    More information: Legal Security Minimum Requirements